Rogue River Lodge – Highly Sought After Southern Oregon Riverfront Real Estate
The Rogue River Lodge offers a unique opportunity to own an iconic riverfront property Historically operated as a…
$1,150,000
2275 Galice Rd, Merlin, OR 97532
Sold
$1,167,000






















































Welcome to 2275 Galice Road, an exceptional 74.04-acre ranch property located at the gateway to Hellgate Canyon, and the legendary Rogue River. This Southern Oregon offering blends productive level ground, year-round water, extensive improvements, water rights for 72 acres and great natural beauty into a property that functions as both a working ranch and a private recreational retreat.
The land is level and fenced, with wide open pastures framed by mountain backdrops and western sunsets. Frontage on year-round Jumpoff Joe Creek, valuable water and irrigation rights, and a nearby natural swimming hole provide both utility and lifestyle appeal. Wildlife is abundant throughout the property, including deer, turkey, and other wild game species.
A custom wrought-iron entry gate marks the entrance, opening to main home and views across the ranch and surrounding mountains. The setting is peaceful and private, yet accessible, placing you minutes from Merlin and the I5 corridor while feeling a world away.
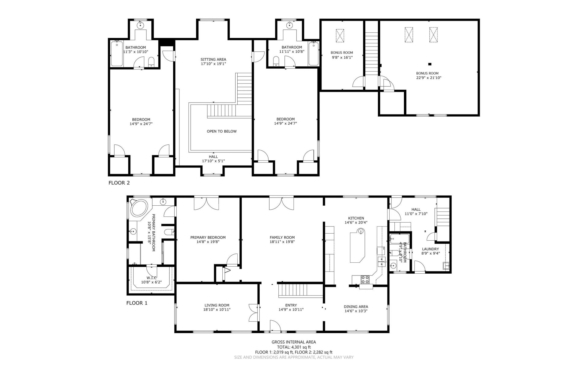
The two-story farmhouse features a traditional layout with clearly defined spaces. A grand foyer with tall vaulted ceilings opens to the loft above, creating a strong sense of arrival. The main level includes a formal living room, well-appointed kitchen, dedicated dining room, large private office, and a spacious primary suite. The kitchen is equipped with granite countertops, a large island, ample cabinetry, and dual ovens. The primary suite is located on the main level and offers a private retreat with an oversized bedroom, walk-in closet, and ensuite bath featuring dual vanities and a large jetted tub. An oversized utility room anchors the opposite wing of the home and is paired with a full guest bath. Access to the attached two-car garage is also located on this side of the home, making it ideal for ranch and outdoor living.
Upstairs, the primary staircase leads to an open loft with a wrap around balcony that functions as a second living space. At each end of the upper level are two oversized bedroom suites, each with vaulted ceilings and a private full bathroom, well suited for guests or kids. A secondary staircase off the mudroom accesses a separate upper level bonus-room wing, featuring bonus rooms, offering flexible space for recreation, storage, office use, or hobbies. Interior updates include flooring, carpet, and interior paint throughout significant portions of the home.
This property has a rich history as both a horse ranch and dairy, and its improvements reflect that legacy, while offering modern adaptability:
The scale and functionality of these improvements are increasingly difficult to replicate and offer flexibility for agriculture, hobbies or creative adaptive reuse.
Nearly all of the 74.04 acres is usable pasture ground, ideal for horses, livestock, or hay production. Jumpoff Joe Creek enhances both irrigation capability and recreation, while the swimming hole provides a natural gathering place during warmer months. Portions of the property also enjoy access to public lands, enhancing recreational opportunities.
2275 Galice Road is more than a ranch—it is a complete lifestyle property offering land, water, views, infrastructure, and location in one cohesive package. Whether envisioned as a working ranch, equestrian estate, recreational compound, or legacy family holding, this property delivers scale, versatility, and character that are seldom found in today’s market.
Properties offering this combination of 74.04 acres, year-round water, extensive improvements, and proximity to the conveniences are increasingly rare.
The Rogue River Lodge offers a unique opportunity to own an iconic riverfront property Historically operated as a…
$1,150,000
Welcome to the Paradise Creek 160 – a 160 acre timbered offering that includes great investment potential and…
$260,000