716 Pioneer Road – 6-Unit Multifamily Opportunity
Opportunity is knocking! This sixplex is a unique and rare investment opportunity, offering a great location in Brookings.…
$899,500
100 Christian Ave, Talent, OR 97540
Pending
$359,000 $369,000































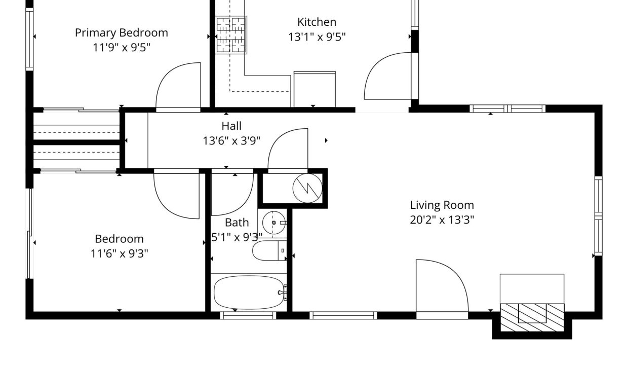
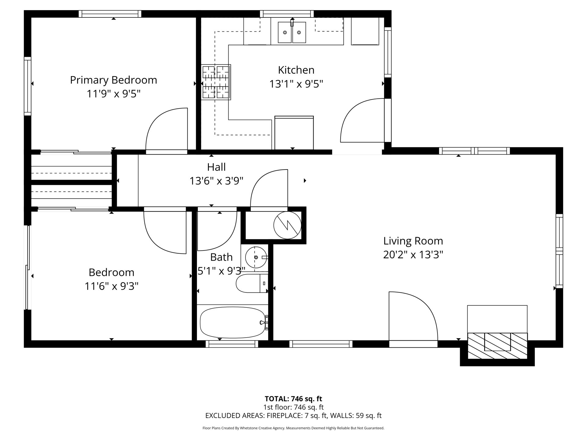
Set in the core of Talent, this inviting home offers the ease of small-town living with schools, parks, dining, and local shops all within close proximity. Framed by views of Grizzly Peak, the home blends classic charm with thoughtful updates and a welcoming sense of space both inside and out.
The open living area features hardwood floors, a cozy fireplace, and window coverings throughout, creating a comfortable setting for everyday living. Natural light fills the home, while mountain views add a quiet reminder of the surrounding landscape that makes this valley so special.
Over the years, the property has been carefully maintained and updated, reflecting pride of ownership throughout.
Improvements include:
Step outside and you’ll find a fully fenced yard designed for both relaxation and productivity. Garden beds are ready for planting and supported by an automatic in-ground irrigation system for easy seasonal care. Established landscaping with heirloom roses, raspberries, and a diverse collection of mature fruit trees that include figs, pears, peaches, apricots, cherries, and almonds, creating a setting that feels both private and plentiful.
Multiple outdoor living areas provide room to unwind, entertain, or simply enjoy the seasons. Whether it’s morning coffee on the covered front patio or summer evenings on the back deck overlooking the garden, the outdoor spaces extend the livability of the home.
The city of Talent offers a welcoming small-town atmosphere set among the farms, vineyards, and open landscapes of Southern Oregon’s Rogue Valley. Known for its strong sense of community and connection to the surrounding agricultural lands, Talent blends rural character with a growing collection of local cafés, markets, and neighborhood gathering places. The town sits along the Bear Creek Greenway, providing miles of paved paths for biking and walking while connecting residents throughout the valley.
Just minutes away, Ashland expands the region’s cultural and culinary opportunities. Home to the renowned Oregon Shakespeare Festival, Ashland’s vibrant downtown features theaters, galleries, restaurants, and the expansive Lithia Park, offering residents of Talent easy access to one of Southern Oregon’s most celebrated cultural hubs while still enjoying the quieter pace of life nearby. Together, the two communities create a balance of small-town living, outdoor recreation, and year-round arts and culture.
With its combination of location, character, and a yard full of life, this move-in ready property offers a rare opportunity to enjoy the rhythm of Talent’s vibrant community while having space to garden, gather, and grow.
Opportunity is knocking! This sixplex is a unique and rare investment opportunity, offering a great location in Brookings.…
$899,500
This remodeled office building is centrally located in Medford and benefits from great exposure on an arterial street…
$620,000